ニットフェンス ニッケンフェンス&メタル 商品番号:NKM-13
								ネットフェンスシリーズ
ニットフェンス  [Nit® Fence]
株式会社ニッケンフェンス&メタル
特徴
●施工の簡素化
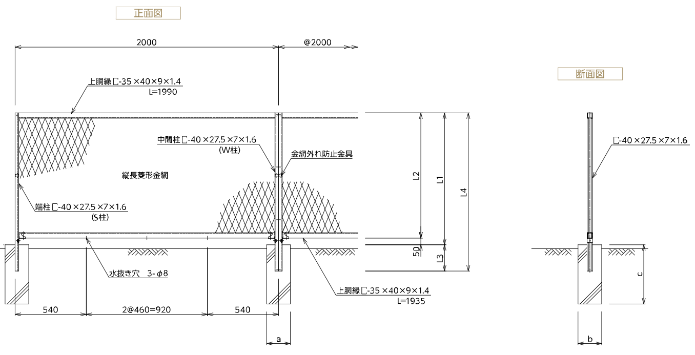
支柱に胴縁と一体になった金網を垂らして上下4ヵ所を止めるだけ
●パッケージ梱包…1スパン分の材料が1パッケージに収納
●カラーカスタマイズ…金網の斬新なカラーを自由に組合せ
標準品
高さ:100、120、150、180
色・デザイン:お選び頂けます
〇お見積・ご購入をご希望のお客様へ〇
お問合せの際は、下記の情報をお教えください
・高さ
・色とデザイン
・施工長
・納入場所(お客様住所と異なる場合はお教えください)
・ご希望納期
※折れ曲がりや、2連以上ある場合などは詳細をお教えください								
								 
							
- 販売単位:
- 価格:
- お問合せください
製品仕様 材質・表面処理
| 部材 | 材質 | 表面処理 | 
|---|---|---|
| 主剤 | П40x27.5x7x1.6 SGHC Z12 | ポリエステル系粉体焼付 | 
| 胴縁 | П35x40x9x1.4 SGHC Z12 | ポリエステル系粉体焼付 | 
| 金網 | φ3.2x50x120 SWM-GS2 | ポリエチレン樹脂被覆 | 
カラーカスタマイズ
自由な色彩構成による表情
サイズ
用途・環境に応じたサイズ展開
施工性
胴緑と一体化したネットによる施工性UPと省力化
輸送
最小パーツによる輸送コストダウンと在庫省スペース化
管理番号:2519
					









 
								 
									 
									 
									 
									 
									
